Garden Layout - How Outdoor Space Is Organized

TL;DR — What Garden Layout Means

Garden layout refers to how outdoor space is physically organized - including the placement of paths, seating areas, planting beds, and other functional zones.

It determines how a garden works in everyday use, before style, material, or planting choices are applied.

A strong layout resolves proportion, circulation, and spatial relationships so the garden functions comfortably and logically.


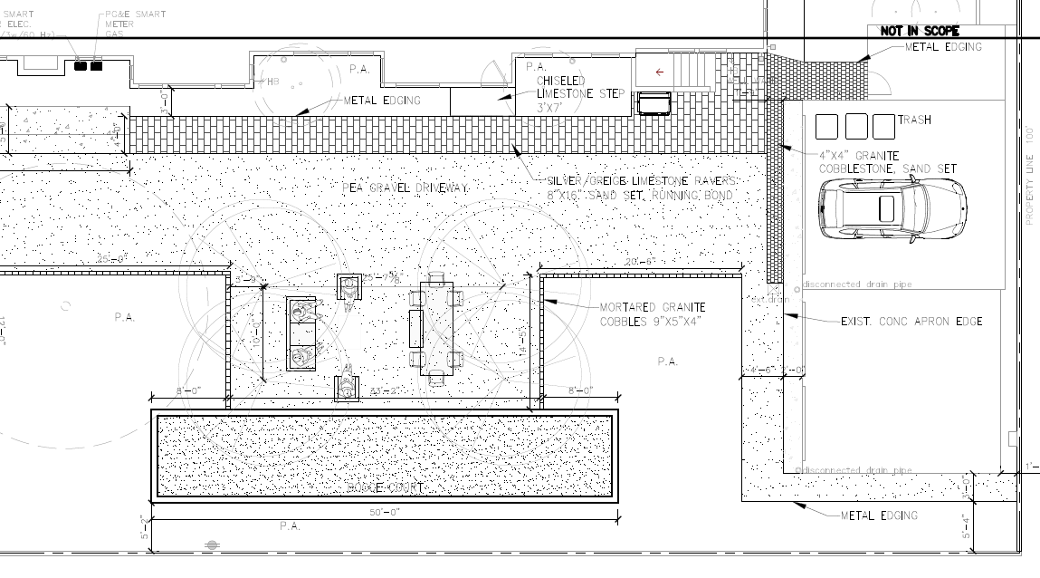
Garden layout showing steps, path, driveway, and planting bed. Designed by Tina Flint Huffman of Greenhouse Studio.

Garden layout: Tina Flint Huffman, Greenhouse Studio

What Garden Layout Is (Plainly Defined)

Garden layout refers to the physical arrangement of space in a garden. It’s the placement and relationship of paths, open areas, planted areas, and built features — and how those pieces fit together as a whole.

In practical terms, layout determines where you walk, where you stop, where activities happen, and how one part of the garden connects to another. It sets the basic structure of the space before any design style or plant choices are applied. Garden layout is one component of overall garden design.

This is why layout matters.

You can have attractive materials, healthy plants, and thoughtful details, but if the underlying arrangement of the space isn’t right, the garden won’t function well. It may feel awkward to move through, hard to use, or strangely underwhelming, even if nothing looks obviously wrong.

Layout works independently of decoration and planting. A garden can have a clear, effective layout long before you decide what it should look like. When that structure is in place, later design and planting decisions tend to fall into place more easily — and the garden feels cohesive rather than pieced together.

The Role of Layout in a Well-Designed Garden

Once you understand what garden layout refers to, its role becomes straightforward: layout determines how a garden functions as a physical space.

Planning identifies what needs to happen in the garden. Design shapes how the garden looks and feels. Layout is the step that organizes space so those intentions can actually work on the ground.

This is where many gardens quietly go wrong.

Homeowners often move from planning straight into design decisions - choosing materials, features, or plants - without resolving how the space should be organized.

The result is a garden that technically includes everything it’s supposed to, but doesn’t function as expected.

Layout answers practical questions that design by itself can’t fix.

  • Which parts of the garden should feel open and connected, and which should feel more contained or tucked away?

  • How much space does a seating area actually need to feel comfortable rather than cramped?

  • How wide should paths or walkways be?

These decisions shape how the garden works every day.

When they’re handled well, the garden feels good to move through and easy to live with. When they’re not, the problems show up as small but persistent, nagging frustrations - awkward circulation, under-used areas, or spaces that just never feel “quite right.”

Part of a landscape layout plan (click to enlarge). Its purpose is to show how people will use and move around the space. Landscape design, Tina Flint Huffman, Greenhouse Studio

 

Core Elements of Garden Layout

Every garden layout is made up of a few basic components. These aren’t stylistic choices or design trends - they’re structural decisions that determine how your space is organized and used.

Zones and Functional Areas

Zones are simply areas of the garden that serve different purposes. One area might be used for dining, another for children’s recreation, and another for growing vegetables.

Some zones are active and social; others are quieter or more private.

A clear layout gives each zone enough space to function properly and places them in a logical relationship to one another.

Areas that are used frequently should be easy to access. Areas meant for lingering should be sized and positioned so they don’t feel squeezed in.

When zones aren’t clearly defined, gardens often feel disjointed, and some areas end up underused because the space doesn’t support any use particularly well.

Circulation and Movement

Circulation refers to how people move through the outdoor space. This includes paths, walkways, openings, and the natural routes people take from one area to another.

Good circulation allows you to move through the garden without weaving around obstacles or cutting through planting beds.

Paths are wide enough to move comfortably, routes follow natural lines of travel, and circulation doesn’t cut through areas meant for sitting or gathering.

Unresolved circulation makes gardens feel awkward - people hesitate, double back, or avoid certain areas altogether.

Garden Circulation showing stone paver path and steps bound by planting beds and leading up to a residential front door

Garden layout includes circulation which refers to how people move through the outdoor space.

Edges, Boundaries, and Transitions

Edges define where one area ends and another begins. These can be created by walls, fences, planting, changes in surface material, or elevation changes (like steps or a retaining wall).

Without clear edges or transitions, areas can bleed into one another, making the garden feel messy or undefined rather than relaxed and informal.

Layout of garden paths defines edges between walkways and planting areas.

Garden layout defines edges, transitions, and boundaries

 

How People Actually Use Space (and Why Layout Must Respond)

People don’t experience a garden all at once. They move through it. They enter, walk, pause, sit, look around, and change direction. A good layout takes this into account instead of treating the garden as a single, static picture.

Most movement in a garden is predictable. People take the most direct route between spaces. They avoid tight or awkward passages. They gravitate toward areas that feel comfortable and clearly defined.

When layout aligns with these natural behaviors, the garden feels easy to use. When it doesn’t, people unconsciously work around the space — creating worn paths, avoiding certain areas, or cutting through planting.

Layout also influences where people stop and spend time. Seating areas that feel exposed or squeezed between paths tend to be underused. Areas that offer a sense of separation from circulation feel more comfortable, even if they’re only a few steps away.

These differences aren’t about decoration; they come down to how the space is arranged.

Views and sightlines matter as well. What you see as you move through the garden affects how the space feels.

A layout that reveals areas gradually can make even a small garden feel layered and interesting, giving a sense of intrigue and mystery at times. Conversely, a layout that exposes everything at once often feels flat or unfinished.

When layout responds to how people actually use space, the garden works naturally. The space itself guides movement, suggests where to linger, and the whole garden feels intuitive.

 

Garden Layout vs. Garden Planning

Garden planning and garden layout are closely related, but they serve different purposes.

Garden planning is about understanding the site you’re working with and what the garden needs to do.

This includes practical considerations like how the space will be used, where access is required, existing constraints, and any limitations the site presents.

Planning helps you make informed decisions before anything is arranged on the ground.

Garden layout is where those planning decisions are put into physical form.

It organizes space in response to what planning has revealed. Once you know what needs to happen in the garden, layout determines where those activities belong and how they relate to one another.

Problems arise when planning is treated as optional or skipped altogether, or when layout is treated as an afterthought.

Without planning, layout decisions end up being piecemeal. Without layout, the garden plan is never fully translated onto the space itself.

In both cases, the garden can ‘look complete’ while still feeling awkward or inefficient to use.

Layout is the bridge between planning and design.

It takes the information gathered during planning and translates it into a spatial framework that supports later design and planting decisions.

When your garden’s layout is handled well, the design work that follows becomes much more straightforward.

When it’s rushed or overlooked, issues often surface later, when they’re usually harder and more expensive to fix.

 

Garden Layout vs. Garden Design

Landscape layout is part of the design process, but layout and design address different kinds of decisions.

Layout determines how space is organized and how the garden functions. Design focuses on how that structure is expressed — through materials, shapes, and planting choices.

Both matter, but they solve different problems.

This distinction becomes important when something in a garden doesn’t feel right.

Design choices can influence how a space looks, but they can’t fix issues caused by poor organization. If a planting bed feels awkward to access, or a seating area never gets used, the issue is usually structural rather than stylistic.

When the layout is resolved first, design decisions fall into place more easily.

That’s because the structure of the space already supports how it’s meant to be used, so materials and plants are chosen to enhance that framework rather than compensate for it.

 

Common Garden Layout Problems (and What They Reveal)

Many garden frustrations are blamed on plants, materials, or maintenance when the real issue is how the space is organized.

One common problem is areas that are underused. A seating spot might look inviting but feel exposed or disconnected. A planting bed may be well cared for, yet feel out of scale with what surrounds it.

These situations usually point to layout decisions that didn’t fully account for how the space would be used.

Another frequent issue is awkward movement through the garden. Paths that are too narrow, routes that cut through planted areas, or circulation that forces people to backtrack can make a garden feel inconvenient rather than enjoyable. Over time, people naturally avoid these areas, even if they can’t articulate why.

Gardens can also feel visually unsettled when layout isn’t resolved. Spaces bleed together, focal points compete, or there’s no clear sense of where one area ends and another begins. In these cases, adding more plants or features often makes the problem worse, not better.

Recognizing these problems for what they are is important. If the issue is structural, it has to be solved structurally. It's worth the extra effort.

Trying to solve layout problems with planting or decoration does not create lasting improvement.

If you want to understand how layout fits into the broader design process, start by learning the basics of garden design.

Landscape layout has to feel natural and inviting. Placing a bench in an isolated spot without shade may or may not see much use, however appealing it looks.

 

What a Successful Garden Layout Achieves

A successful garden layout makes the space comfortable and easy to live with.

You can move through the garden without weaving around furniture or cutting through planting beds. Seating areas have adequate room to function, and paths are wide enough for everyday movement. There aren’t awkward leftover corners or empty stretches of lawn that exist simply because nothing else was planned.

The space makes practical sense.

A strong layout also holds up over time. Plants mature and fill in, furniture shifts, and priorities change. When the structure of the space is sound, those changes don’t disrupt how the garden works. The space remains usable even as details evolve.

A successful layout allows the garden to serve your intended purposes — not the other way around.

You’re not constantly relocating furniture, hacking back shrubbery, or rerouting foot traffic because the space was out of proportion from the start.

The garden simply works.

Tina Flint Huffman


Tina Huffman is a garden designer and educator with a Masters in Landscape Architecture and Bachelor of Science in Horticulture. She teaches gardeners and homeowners how to plan and design gardens using clear, practical frameworks grounded in real-world design experience.


Get A Garden You Love —

https://greenhousestudio.co/about
Previous
Previous

Garden Design Ideas: How to Pick the Right Ideas for Your Space

Next
Next

Garden Planning: How to Plan a Garden That Actually Works